Página inicial
>
Projeto Modelo
>
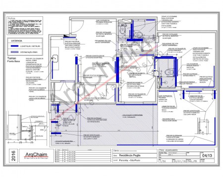
04 CONSTRUÇÃO.jpg
Na prancha de CONSTRUÇÃO, são destacadas, informadas e cotadas as áreas que serão criadas e adicionadas ao imóvel.
Anterior
Apresentação de slides
Próxima
Voltar
Menu
Função do Profissional
Escolhendo o profissional
Escritório
Equipe
Serviços
Projeto Modelo e Honorários
Case
Galeria de projetos
Publicações & News
Serviços para Estudantes
Contato
Pesquisar no site
Pesquisar no site
Parceiros
Conheça mais sobre o escritório nos sites:
Página Inicial
Mapa do site
RSS
Imprimir
Voce gostou deste site?
Crie o seu próprio site gratuito em 5 minutos!
Experimente!